Our Kitchen Renovation Service

The process for each of our kitchen renovations has been refined over years of experience, Our goal is to delight at every stage of the process and make it as seemless as possible.

blue divider
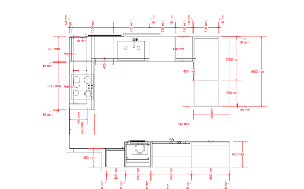
2D top-down measurements showing kitchen plan and layout

Design and planning consultation

When we meet with you for a design meeting we take detailed measurements of your space, your plans and share expert tips on making the most out of your space and getting the best outcome with your budget. Once all is agreed we create a design floor plan.

3D kitchen design render showing cabinetry layout.

Kitchen design renders for visualisation and added confidence.

Using the measurements taken and the design and layout preffered we can share a 3d render of your new kitchen to help you feel 100% confident of the layout and design before you proceed.

Sleek stainless steel faucet installed over a tiled backsplash.

Your Quote

In your quote for the renovation project we can include as much or little of the project as you like.  Many of our clients like us to quote all aspects of the kitchen renovation journey, including our custom NZ made cabinetry, plumbing, electrical, tiling, benchtops and appliances. By sharing trade discounts with you we price extremely competitively and add more value than utilising numerous trade outfits.

2D top-down measurements showing kitchen plan and layout

Design and planning consultation

When we meet with you for a design meeting we take detailed measurements of your space, your plans and share expert tips on making the most out of your space and getting the best outcome with your budget. Once all is agreed we create a design floor plan.

3D kitchen design render showing cabinetry layout.

Kitchen design renders for visualisation and added confidence.

Using the measurements taken and the design and layout preffered we can share a 3d render of your new kitchen to help you feel 100% confident of the layout and design before you proceed.

Sleek stainless steel faucet installed over a tiled backsplash.

Your Quote

In your quote for the renovation project we can include as much or little of the project as you like.  Many of our clients like us to quote all aspects of the kitchen renovation journey, including our custom NZ made cabinetry, plumbing, electrical, tiling, benchtops and appliances. By sharing trade discounts with you we price extremely competitively and add more value than utilising numerous trade outfits.

Call Us Today—We’d Love to Hear from You!

Kitchen Project Gallery

Check out our recent Kitchen project images.

blue divider
Modern white kitchen with stainless steel appliances.
Sleek white modern kitchen with white tile splashback.
White kitchen with white tile spashback, black dining table, and stone coloured tile flooring.
White minimalist kitchen with large windows and natural light.
Dark-toned kitchen with glossy cabinets and lighting.
Minimalist kitchen with flat-panel cabinetry and soft lighting.
Open modern kitchen with island and bar stools.
White farmhouse-style kitchen with wood flooring.